ТЕМА 3. Расчет и выбор посадок колец подшипников качения
В современной технике очень широко применяются подшипники качения. Но даже правильно подобранный подшипник не будет обеспечивать заданную долговечность узла, если неправильно рассчитаны и выбраны посадки его наружного и внутреннего колец. Циркуляционно нагруженные кольца должны обеспечивать отсутствие сдвига деталей, образующих соединение, относительно друг друга. Местно нагруженные кольца должны иметь незначительный зазор между кольцом и посадочным местом, что позволит обеспечить не только разборку узла, но и равномерный износ дорожки качения этого кольца. Характер посадки, величины зазоров или натягов колец подшипника с сопрягаемыми деталями, зависят от типа подшипника, от условий его эксплуатации, от величины, направления и характера нагрузок и других факторов.
Рассмотрим методику решения задачи на примере
Шариковый подшипник качения воспринимает радиальную нагрузку
. Класс точности подшипника, вид нагрузки и вращающееся кольцо заданы в таблице 3.1.
Требуется:
1. Записать и расшифровать условное обозначение подшипника.
2. Определить вид нагружения внутреннего и наружного колец.
3. Выписать основные геометрические параметры, предельные отклонения колец и радиальные зазоры подшипника.
4. Произвести расчет и выбор посадок для соединений внутреннее кольцо - вал и наружное кольцо – корпус.
5. Построить схемы расположения полей допусков выбранных посадок.
6. Дать пример обозначения посадок подшипниковых колец на эскизе подшипникового узла и допусков на эскизах сопрягаемых деталей (вала и корпуса) с простановкой шероховатости и отклонений формы и расположения поверхностей.
Таблица 3.1
Исходные данные
| Параметр | Обозначение | Значение |
| Условное обозначение подшипника | 214 | - |
| Класс точности | 6 | - |
| Радиальная нагрузка |
| 15 кН |
| Вид нагрузки | умеренная | - |
| Вращается кольцо | внутреннее | - |
| Корпус | неразъемный | - |
| Группа радиального зазора | 7 | - |
Решение:
3.1 Запись и расшифровка условного обозначения подшипника
Условное обозначение шарикового радиального однорядного стандартного подшипника с группой зазора 7, класса точности6, легкой серии (2) и диаметром отверстия 70 (14х5=70) записываем так:
7-6-214 ГОСТ 8338-75
3.2 Определение вида нагружения внутреннего и наружного колец
Внутреннее кольцо является циркуляционно нагруженным, т.к. оно вращается и воспринимает нагрузку попеременно всей поверхностью дорожки качения.
Наружное кольцо является местно нагруженным, т.к. оно неподвижно и воспринимает нагрузку только частью поверхности.
3.3 Определение основных геометрических параметров, предельных отклонений колец и радиальных зазоров подшипника
Выписываем технические и точностные характеристики подшипника 7-6-214 ГОСТ 8338-75 по таблицам 3.2, 3.3, 3.4, 3.5:
- внутренний диаметр
мм;
- наружный диаметр
мм;
- ширина кольца В=24 мм = 0,24 м;
- радиус фасок r = 2,5 мм = 0,0025м;
- радиальные зазоры: наибольший
мкм; наименьший
мкм.
3.4 Расчет и выбор посадок для соединений внутреннее кольцо – вал и наружное кольцо – корпус
3.4.1 Расчет и выбор посадки циркуляционного нагружения кольца
Для циркуляционно нагруженных колец посадку выбираем по величине интенсивности радиальной нагрузки на посадочную поверхность:
, (3.1)
где
- динамический коэффициент посадки, зависящий от характера нагрузки (спокойная нагрузка
=1...1,2; с умеренными толчками и вибрацией
=1,3...1,8; ударная с перегрузками до 300%
= 2...3); К – коэффициент учитывающий степень ослабления посадочного натяга при полом вале или тонкостенном корпусе (изменяется для вала от 1 до 3, при сплошном вале К=1; для корпуса К=1...1,8);
- коэффициент неравномерности распределения радиальной нагрузки между рядами шариков или роликов в двухрядных (сдвоенных) подшипниках качения (
= 1...2), для однорядного подшипника
=1.
Для нашего случая:
.
По таблице 3.6 имеем поле допуска циркуляционно нагруженного вала
. Тогда посадку, рисунок 3.1, запишем так:
.

Рис. 3.1. Посадка внутреннего циркуляционно нагруженного кольца на вал
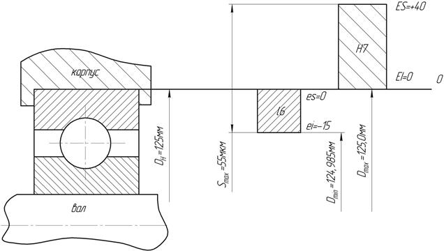
3.4.2 Выбор посадки местно нагруженного кольца
Посадку местно нагруженного кольца – наружного, выбираем в соответствие с данными таблицы 3.7. В нашем случае, для умеренной нагрузки при применении разъемного корпуса, имеем поле допуска корпуса
. Тогда посадку, рисунок 3.2, запишем так:
.

Рис. 3.2. Посадка наружного кольца в корпус
3.5 Обозначение посадок подшипниковых колец на эскизе подшипникового узла и допусков на эскизах сопрягаемых деталей
На рисунке 3.3 представлен эскиз узла подшипника качения с выбранными посадками наружного и внутреннего колец.
На рисунке 3.4 приведен эскиз вала с требованиями к поверхности под внутреннее кольцо подшипника.
На рисунке 3.5 показан эскиз корпуса с требованиями к поверхности под наружное кольцо подшипника.
Параметры шероховатостей поверхностей валов и корпусов определяются по таблице 3.8. Допуски отклонения формы и расположения поверхностей берем в соответствии с таблицей 3.9.
Таблица 3.2
Технические характеристики шариковых подшипников
(выборочные данные по ГОСТ 520-85)
| Условное обозначение | Геометрические параметры | Шарики | Грузоподъем- ность, кг | Частота вращения при смазке | ||||||
| d | D | B | r | dm | z | C | C0 | Консистентной | жидкой | |
| 104 | 20 | 42 | 12 | 1 | 6,35 | 9 | 955 | 459 | 17000 | 20000 |
| 106 | 30 | 55 | 13 | 1,5 | 7,14 | 11 | 1357 | 694 | 12000 | 15000 |
| 108 | 40 | 68 | 15 | 1,5 | 7,94 | 12 | 1714 | 949 | 9500 | 12000 |
| 110 | 50 | 80 | 16 | 1,5 | 8,73 | 12 | 2204 | 1347 | 8500 | 10000 |
| 112 | 60 | 95 | 18 | 2,0 | 11,11 | 12 | 3020 | 1867 | 6700 | 8000 |
| 114 | 70 | 110 | 20 | 2,0 | 12,30 | 13 | 3847 | 2500 | 6000 | 7000 |
| 118 | 90 | 140 | 24 | 2,5 | 14,30 | 15 | 5837 | 3980 | 4800 | 5600 |
| 122 | 110 | 170 | 28 | 3,0 | 18,30 | 13 | 8357 | 5816 | 3800 | 4500 |
| 204 | 20 | 47 | 14 | 1,5 | 7,94 | 8 | 1296 | 633 | 15000 | 18000 |
| 206 | 30 | 62 | 16 | 1,5 | 9,53 | 9 | 1990 | 1020 | 10000 | 13000 |
| 208 | 40 | 80 | 18 | 2,0 | 12,70 | 9 | 3265 | 1816 | 8500 | 10000 |
| 210 | 50 | 90 | 20 | 2,0 | 12,70 | 10 | 3582 | 2020 | 7000 | 8500 |
| 212 | 60 | 110 | 22 | 2,5 | 15,88 | 10 | 5306 | 3163 | 6000 | 7000 |
| 214 | 70 | 125 | 24 | 2,5 | 17,46 | 10 | 6306 | 3826 | 5000 | 6000 |
| 218 | 90 | 160 | 30 | 3,0 | 22,23 | 10 | 9755 | 6326 | 3800 | 4500 |
| 304 | 20 | 52 | 15 | 2,0 | 9,53 | 7 | 1622 | 796 | 13000 | 16000 |
| 306 | 30 | 72 | 19 | 2,0 | 12,30 | 8 | 2867 | 1490 | 9000 | 11000 |
| 308 | 40 | 90 | 23 | 2,5 | 15,08 | 8 | 4184 | 2286 | 7500 | 9000 |
| 310 | 50 | 110 | 27 | 3,0 | 19,05 | 8 | 6306 | 3673 | 6300 | 7500 |
| 312 | 60 | 130 | 31 | 3,5 | 22,23 | 8 | 8357 | 4898 | 5000 | 6000 |
| 314 | 70 | 150 | 35 | 3,5 | 25,4 | 8 | 10612 | 6428 | 4500 | 5300 |
| 316 | 80 | 170 | 39 | 3,5 | 28,58 | 8 | 12653 | 8163 | 3800 | 4500 |
| 320 | 100 | 215 | 47 | 4,0 | 36,51 | 8 | 17755 | 13469 | 3000 | 3600 |
| 330 | 150 | 320 | 65 | 5,0 | 50,80 | 8 | 28163 | 25510 | 1900 | 2400 |
| 405 | 25 | 80 | 21 | 2,5 | 16,67 | 6 | 3714 | 2082 | 9000 | 11000 |
| 406 | 30 | 90 | 23 | 2,5 | 19,05 | 6 | 4796 | 2724 | 8500 | 10000 |
| 408 | 40 | 110 | 27 | 3,0 | 22,23 | 6 | 6500 | 3724 | 6700 | 8000 |
| 410 | 50 | 130 | 31 | 3,5 | 25,4 | 7 | 8888 | 5306 | 5300 | 6300 |
| 412 | 60 | 150 | 35 | 3,5 | 28,58 | 7 | 11020 | 7143 | 4800 | 5600 |
| 416 | 80 | 200 | 48 | 4,0 | 38,10 | 7 | 16633 | 12755 | 3400 | 4000 |
Таблица 3.3
Предельные отклонения внутренних колец шариковых и роликовых радиально-упорных подшипников (ГОСТ 520-89)
| Номинальный диаметр внутреннего кольца d, мм | Отклонение среднего диаметра отверстия в единичном сечении | Отклонение единичного диаметра отверстия | Отклонение единичной ширины внутреннего кольца | |||||||||
| кл.точ.0 | кл.точ.6 | кл.точ.0 | кл.точ.6 | кл.точ.0 | кл.точ.6 | |||||||
| EI | ES | EI | ES | EI | ES | EI | ES | EI | ES | EI | ES | |
| От 0,6 до 2,5 | 0 | -8 | 0 | -7 | +1 | -9 | +1 | -8 | 0 | -40 | 0 | -40 |
| Св. 2,5 до 10 | 0 | -8 | 0 | -7 | +2 | -10 | +1 | -8 | 0 | -120 | 0 | -120 |
| Св. 10 до 18 | 0 | -8 | 0 | -7 | +3 | -11 | +1 | -8 | 0 | -120 | 0 | -120 |
| Св. 18 до 30 | 0 | -10 | 0 | -8 | +3 | -13 | +1 | -9 | 0 | -120 | 0 | -120 |
| Св. 30 до 50 | 0 | -12 | 0 | -10 | +3 | -15 | +1 | -11 | 0 | -120 | 0 | -120 |
| Св. 50 до 80 | 0 | -15 | 0 | -12 | +4 | -19 | +2 | -14 | 0 | -150 | 0 | -150 |
| Св. 80 до 120 | 0 | -20 | 0 | -15 | +5 | -25 | +3 | -18 | 0 | -200 | 0 | -200 |
| Св. 120 до 180 | 0 | -25 | 0 | -18 | +6 | -31 | +3 | -21 | 0 | -250 | 0 | -250 |
| Св. 180 до 250 | 0 | -30 | 0 | -22 | +8 | -38 | +4 | -26 | 0 | -300 | 0 | -300 |
| Св. 250 до 315 | 0 | -35 | 0 | -25 | +9 | -44 | +5 | -30 | 0 | -350 | 0 | -350 |
| Св. 315 до 400 | 0 | -40 | 0 | -30 | +10 | -50 | +5 | -35 | 0 | -400 | 0 | -400 |
| Св. 400 до 500 | 0 | -45 | 0 | -35 | +12 | -57 | +6 | -41 | 0 | -450 | 0 | -450 |
Таблица 3.4
Предельные отклонения наружных колец шариковых и роликовых радиальных и шариковых радиально-упорных подшипников (ГОСТ 520-89)
| Номинальный диаметр наружного кольца D, мм | Отклонение среднего наружного диаметра отверстия в единичном сечении | Отклонение единичного наружного диаметра отверстия | Отклонение единичной ширины наружного кольца | |||||||||
| кл.точ.0 | кл.точ.6 | кл.точ.0 | кл.точ.6 | кл.точ.0 | кл.точ.6 | |||||||
| EI | ES | EI | ES | EI | ES | EI | ES | EI | ES | EI | ES | |
| От 0,6 до 2,5 | 0 | -8 | 0 | -7 | +1 | -9 | +1 | -8 | 0 | -40 | 0 | -40 |
| Св. 2,5 до 10 | 0 | -8 | 0 | -7 | +2 | -10 | +1 | -8 | 0 | -120 | 0 | -120 |
| Св. 10 до 18 | 0 | -9 | 0 | -8 | +2 | -11 | +1 | -9 | 0 | -120 | 0 | -120 |
| Св. 18 до 30 | 0 | -11 | 0 | -9 | +3 | -14 | +2 | -11 | 0 | -120 | 0 | -120 |
| Св. 30 до 50 | 0 | -13 | 0 | -11 | +4 | -17 | +2 | -13 | 0 | -120 | 0 | -120 |
| Св. 50 до 80 | 0 | -15 | 0 | -13 | +5 | -20 | +2 | -15 | 0 | -150 | 0 | -150 |
| Св. 80 до 120 | 0 | -18 | 0 | -15 | +6 | -24 | +3 | -18 | 0 | -200 | 0 | -200 |
| Св. 120 до 180 | 0 | -25 | 0 | -18 | +7 | -32 | +3 | -21 | 0 | -250 | 0 | -250 |
| Св. 180 до 250 | 0 | -30 | 0 | -20 | +8 | -38 | +4 | -24 | 0 | -300 | 0 | -300 |
| Св. 250 до 315 | 0 | -35 | 0 | -25 | +9 | -44 | +4 | -29 | 0 | -350 | 0 | -350 |
| Св. 315 до 400 | 0 | -40 | 0 | -28 | +10 | -50 | +5 | -33 | 0 | -400 | 0 | -400 |
| Св. 400 до 500 | 0 | -45 | 0 | -33 | +12 | -57 | +5 | -38 | 0 | -450 | 0 | -450 |
Таблица 3.5
Радиальные зазоры Gr подшипников радиальных шариковых однорядных
| Номиналь-ный диаметр d отверстия подшипника, мм | Размер зазора Gr, мкм | |||||||||
| наиб. | наим. | наиб. | наим. | наиб. | наим. | наиб. | наим. | наиб. | наим. | |
| Группа зазора | ||||||||||
| 6 | нормальн. | 7 | 8 | 9 | ||||||
| Св. 2,5 до 10 | 0 | 7 | 2 | 13 | 8 | 23 | 14 | 29 | 20 | 37 |
| Св. 10 до 18 | 0 | 9 | 3 | 18 | 11 | 25 | 18 | 33 | 25 | 45 |
| Св. 18 до 24 | 0 | 10 | 5 | 20 | 13 | 28 | 20 | 36 | 28 | 48 |
| Св. 24 до 30 | 1 | 11 | 5 | 20 | 13 | 28 | 23 | 41 | 30 | 53 |
| Св. 30 до 40 | 1 | 11 | 6 | 20 | 15 | 33 | 28 | 46 | 40 | 64 |
| Св. 40 до 50 | 1 | 11 | 6 | 23 | 18 | 36 | 30 | 51 | 45 | 73 |
| Св. 50 до 65 | 1 | 15 | 8 | 28 | 23 | 43 | 38 | 61 | 55 | 90 |
| Св. 65 до 80 | 1 | 15 | 10 | 30 | 25 | 51 | 46 | 71 | 65 | 105 |
| Св. 80 до 100 | 1 | 18 | 12 | 36 | 30 | 58 | 53 | 84 | 75 | 120 |
| Св. 100до120 | 2 | 20 | 15 | 41 | 36 | 66 | 61 | 97 | 90 | 140 |
| Св.120 до140 | 2 | 23 | 18 | 48 | 41 | 81 | 71 | 114 | 105 | 160 |
| Св.140 до160 | 2 | 23 | 18 | 53 | 46 | 91 | 81 | 130 | 120 | 180 |
| Св.160 до180 | 2 | 25 | 20 | 61 | 53 | 102 | 91 | 147 | 135 | 200 |
| Св.180 до200 | 2 | 30 | 25 | 71 | 63 | 117 | 107 | 163 | 150 | 215 |
| Св.200 до225 | 2 | 35 | 30 | 80 | 73 | 130 | 120 | 180 | 167 | 230 |
| Св.225 до250 | 2 | 40 | 34 | 90 | 82 | 145 | 135 | 195 | 180 | 245 |
Таблица 3.6
Допускаемые интенсивности нагрузок на посадочной поверхности
вала и корпуса
| Диаметр внутреннего кольца, d, мм | Допускаемая интенсивность PR, кН/м | ||||
| Основные отклонения для вала | |||||
| свыше | до | js6, js5 | k6, k5 | m6, m5 | n6, n5 |
| 18 | 80 | до 300 | 300..1400 | 1400..1600 | 1600..3000 |
| 80 | 180 | 600 | 600..2000 | 2000.2500 | 2800..4000 |
| 180 | 360 | 700 | 700..3000 | 3000..3500 | 3500..6000 |
| 360 | 630 | 900 | 900..3500 | 3500..5400 | 5400..8000 |
| Диаметр наружного кольца, D, мм | Основные отклонения для корпуса | ||||
| K7, K6 | M7,M6 | N7, N6 | P7, P6 | ||
| 50 | 180 | 800 | 800..1000 | 1000..1300 | 1300..2500 |
| 180 | 360 | 1000 | 1000..1500 | 1500..2000 | 2500..3300 |
| 360 | 630 | 1200 | 1200..2000 | 2000..2600 | 2600..4000 |
| 630 | 1600 | 1600 | 1600..2500 | 2500..3500 | 3500..5500 |
Таблица 3.7
Рекомендуемые посадки для колец подшипников при местном нагружении
| Размеры посадочных диаметров, мм | Поля допусков сопрягаемой с подшипником детали | Типы подшипников | ||
| вал | стальной или чугунный | |||
| неразъемный | разъемный | |||
| Нагрузка спокойная или с умеренными толчками и вибрацией; перегрузка до 150% | ||||
| До 80 | h6 | H7 | H7, H8 | Все типы кроме штампованных игольчатых |
| Св. 80 до 260 | h6, g6 | G7 | ||
| Нагрузка с ударами и вибрацией; перегрузка до 300% | ||||
| До 80 | h6 | Js7 | Js6, Js7 | Все типы кроме штампованных игольчатых и роликовых конических двухрядных |
| Св. 80 до 260 | H7 | |||
Таблица 3.8
Параметры шероховатости поверхностей под подшипники на валах
и в корпусах, а также опорных торцевых заплечиков для подшипников
класса точности 0 и 6 ( по ГОСТ 2789-73)
| Посадочная поверхность | Номинальный диаметр, мм | |||
| До 80 | Св. 80 до 500 | |||
| Шероховатость поверхности Ra, мкм не более, при классе точности подшипника | ||||
| 0 | 6 | 0 | 6 | |
| Вал | 1,25 | 0,63 | 2,5 | 1,25 |
| Отверстие в корпусе | 1,25 | 0,63 | 2,5 | 1,25 |
| Опорная торцевая заплечиков валов и отверстий корпусов | 2,50 | 1,25 | 2,5 | 2,5 |
Таблица 3.9
Отклонения формы и расположения поверхностей для элементов деталей.
сопрягаемых с кольцами подшипников качения
| Интервалы номинальных диаметров D и d , мм | Допуски, мкм (для подшипников 0 и 6 класса точности) | |||||
| валов | корпусов | |||||
| круглости и профиля прод. сечения | торцевого биения заплечиков | круглости и профиля прод. сечения | торцевого биения заплечиков | |||
| 0 | 6 | 0 | 6 | |||
| Св. 18 до 30 | 3,5 | 21 | 13 | 5,0 | 33 | 21 |
| Св. 30 до 50 | 4,0 | 25 | 16 | 6,0 | 39 | 25 |
| Св. 50 до 80 | 5,0 | 30 | 19 | 7,5 | 46 | 30 |
| Св. 80 до 120 | 6,0 | 35 | 22 | 9,0 | 54 | 35 |
| Св. 120 до 180 | 6,0 | 40 | 25 | 10,0 | 63 | 40 |
Варианты для задач по теме 3
Исходные данные приведены в табл. 3.10 и 3.11.
Таблица 3.10
| Первая цифра варианта | 0 | 1 | 2 | 3 | 4 | 5 | 6 | 7 | 8 | 9 |
Радиальное усилие , кН
| 6 | 8 | 10 | 12 | 14 | 16 | 18 | 20 | 22 | 24 |
| Класс точности подшипника | 0 | 6 | 0 | 6 | 0 | 6 | 0 | 6 | 0 | 6 |
| Группа зазора | 6 | норм. | 7 | 8 | 9 | 6 | норм. | 7 | 8 | 9 |
| Вращается кольцо | внутреннее | наружное | внутреннее | наружное | внутреннее | |||||
Таблица 3.11
| Вторая цифра варианта | 0 | 1 | 2 | 3 | 4 | 5 | 6 | 7 | 8 | 9 |
| Подшипник | 114 | 116 | 212 | 210 | 208 | 306 | 304 | 316 | 405 | 412 |
| Вид нагрузки | спокойная | умеренная | ударная | |||||||

, мкм
, мкм
, мкм
, мкм
, мкм
, мкм
, кН